학교농공단지 복합문화센터 건립사업 설계공모_참가작
2023. 7. 18. 17:20ㆍ프로젝트_Projects/설계공모_Competition
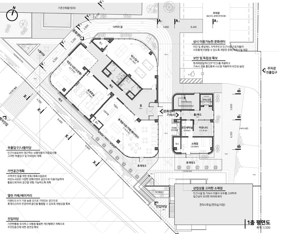
- 공 모 명 : 학교농공단지 복합문화센터 건립사업 설계공모
- 대지위치 : 전라남도 함평군 학교면 죽정리 39-1번지
- 대지면적 : 4,315.90㎡
- 연 면 적 : 1,910.95㎡(증축 1,086.01㎡)
- 건축면적 : 1,288.26㎡(증축 578.40㎡)
- 주요용도 : 제1종 근린생활시설, 공동주택(기숙사)
- 건물규모 : 지상3층
- 외부마감 : 로이복층유리, 벽돌타일, 목재루버, 금속패널
- 공모기간 : 2023.02.26.~2023.03.17.
- 제 출 일 : 2023.03.17.
- 발 주 처 : 전라남도 함평군




01234
'프로젝트_Projects > 설계공모_Competition' 카테고리의 다른 글
| (가칭)주동유치원 신축공사 설계공모_참가작 (0) | 2024.09.27 |
|---|---|
| 345kV 신기흥변전소 토건설계 제안공모_입상 (0) | 2023.07.18 |
| 추사국제서예원 건립사업 설계용역(공모)_입상작 (0) | 2023.07.18 |
| (가칭)외삼미1유치원 신축공사 설계공모_참가작 (0) | 2023.07.17 |
| (가칭)진주혁신유치원 신축공사 설계 용역(공모)_참가작 (0) | 2023.07.17 |